SOLD
GP Surveyors facilitate sales of surgeries across the UK and are regularly bringing GP properties to market. If you’d like to be kept up to date with new properties, please complete our investor form to register your interest.
The sale of this Derbyshire medical centre offers a fantastic investment opportunity.
Investment Summary
• Initial rent: £ 81,000 per annum
• Patient list size: 8,317
• FTE GPs: 4
• Lease: Tenants internal repair lease (TIR)
– Term: 15 year term (from completion date)
– Rent reviews: every 3 years
– Next rent review: 3 years from completion
Key Property Features
• Floor areas
Lower ground floor: 55.98 sqm
Ground floor: 361 sqm
First floor: 97.5 sqm
• Car parking spaces: 9
• Building type: Purpose build surgery dated 1993
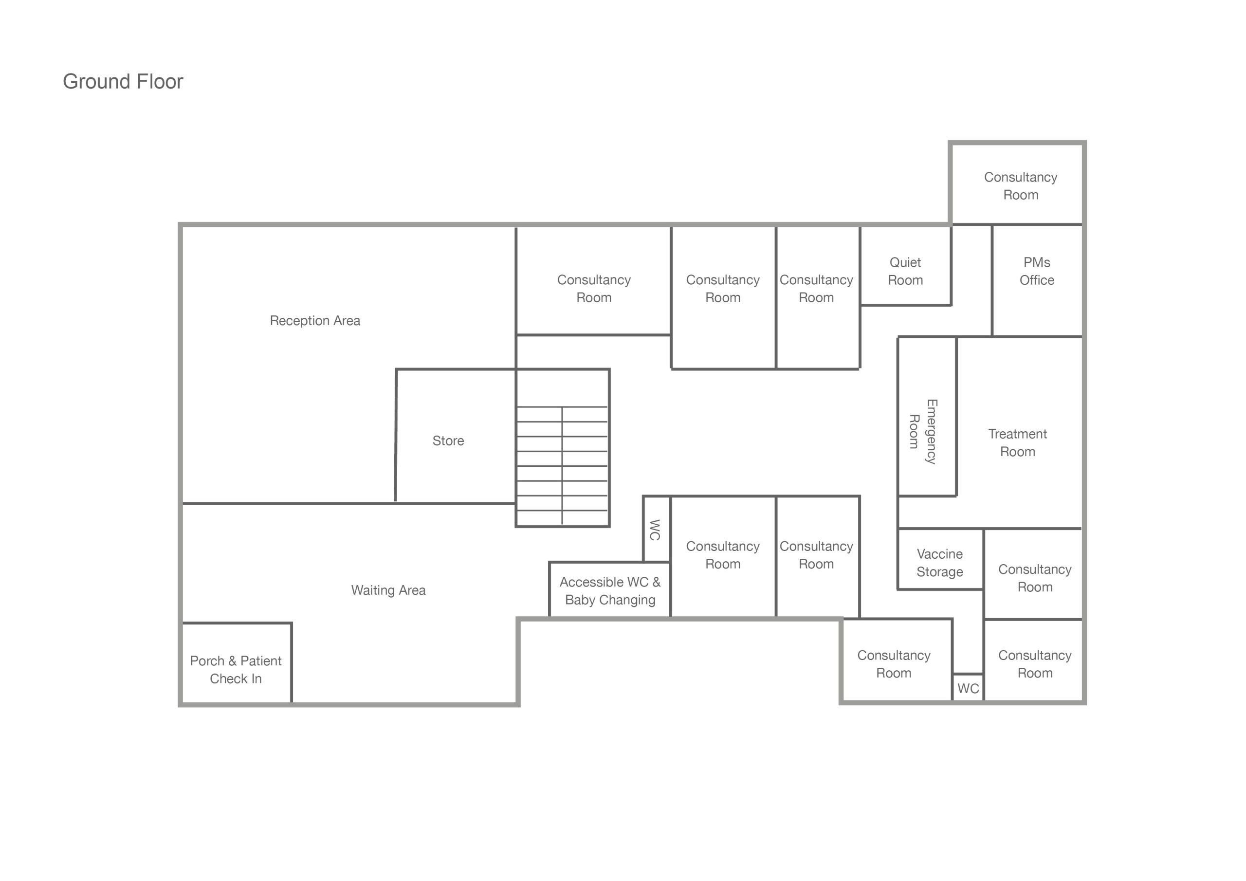
Lime Grove Medical Centre is a large purpose-built practice, with accommodation over three floors. A tarmac car park with nine spaces is situated to the side of the property. The medical centre was built in 1993. In 2020 the ground floor was completely redecorated with new flooring laid throughout as well as a complete renovation of the reception area. In early 2023 additional works were completed on the lower ground floor.
Visitors enter the property into a porch, leading into a spacious waiting area, which adjoins the reception. The reception area includes an office area including the practice’s medical records store. Further office space on the ground floor includes the Practice Managers office, situated to the rear of the property. The rooms used for patient purposes are composed of nine consulting rooms, a large treatment room, an emergency room for hospital transfers, a vaccine store, and a quiet room. Facilities include three WCs, one of which is fully accessible and includes baby changing facilities.
The lower ground floor is accessible via the staircase, situated off the ground floor waiting area, to the rear of reception. The floor consists of a further six consultancy rooms and a waiting area. Facilities include two WCs, one of which is fully accessible. The three other rooms consist of stores, including a medical records store and a clinical waste facility.
The first floor is accessible via the staircases. The floor consists of an admin area, a staff kitchen, a staff room, and a large meeting room. There is a retractable wall between the staff and the meeting room, enabling a larger room to be created for meetings or training. Facilities include three staff WCs.
Click the floorplan to enlarge.
Please note GP Surveyors Anti-Money Laundering Policy for Clients and Purchasers.













