GP Practice Scotland Sold – Ardgowan Medical Practice Greenock
This GP practice in Scotland is now sold, see all our available primary care properties here.
To receive GP property alerts please register here.
Ardgowan Medical Practice in Greenock is a large purpose-built GP surgery, dated 1994 and offers two floors of accommodation, with a large tarmac car park situated to the side of the property, which has space for
28 cars.
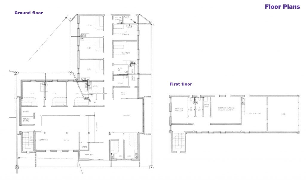
The ground floor is 370 sq m and consists of: eight consulting rooms, a treatment room, a training room, and an examination room. The surgery also benefits from a large waiting and reception area and an administration office. Storage areas include a medical records store, a pram bay, a cleaning cupboard, a refuse store, and a storeroom. Facilities include two WCs, a parent and baby changing room, and utility room.
The first floor is 87.8 sq m and consists of: two office suites, 2 WCs and a shower room, and a common room including kitchen.
Investment Summary
• Notional Rent: £67,650 / annum
• Patient list size: 9,190
• FTE doctors: 5 + 1 part-time
• Freehold (subject to lease to GP partners)
• See brochure and lease
Key Property Features
• Ground floor area: 370 sq m
• First-floor area: 87.8 sq m
• Car parking spaces: 28
• Purpose-built
Contact
Rebecca Adams
Business Development Manager
0114 281 5850
[email protected]





