SOLD
Investment Summary
GP Practice
• Initial rent: £ 23,550 per annum
• Patient list size: 5,497
• FTE GPs: 3
• Tenants internal repair lease (TIR)
– Term: 15 year term (from TBC)
– Break Clauses at 5 and 10 years
– Rent reviews: every 3 years
– Next rent review: 3 years from completion
– VFM Approved
Key Property Features
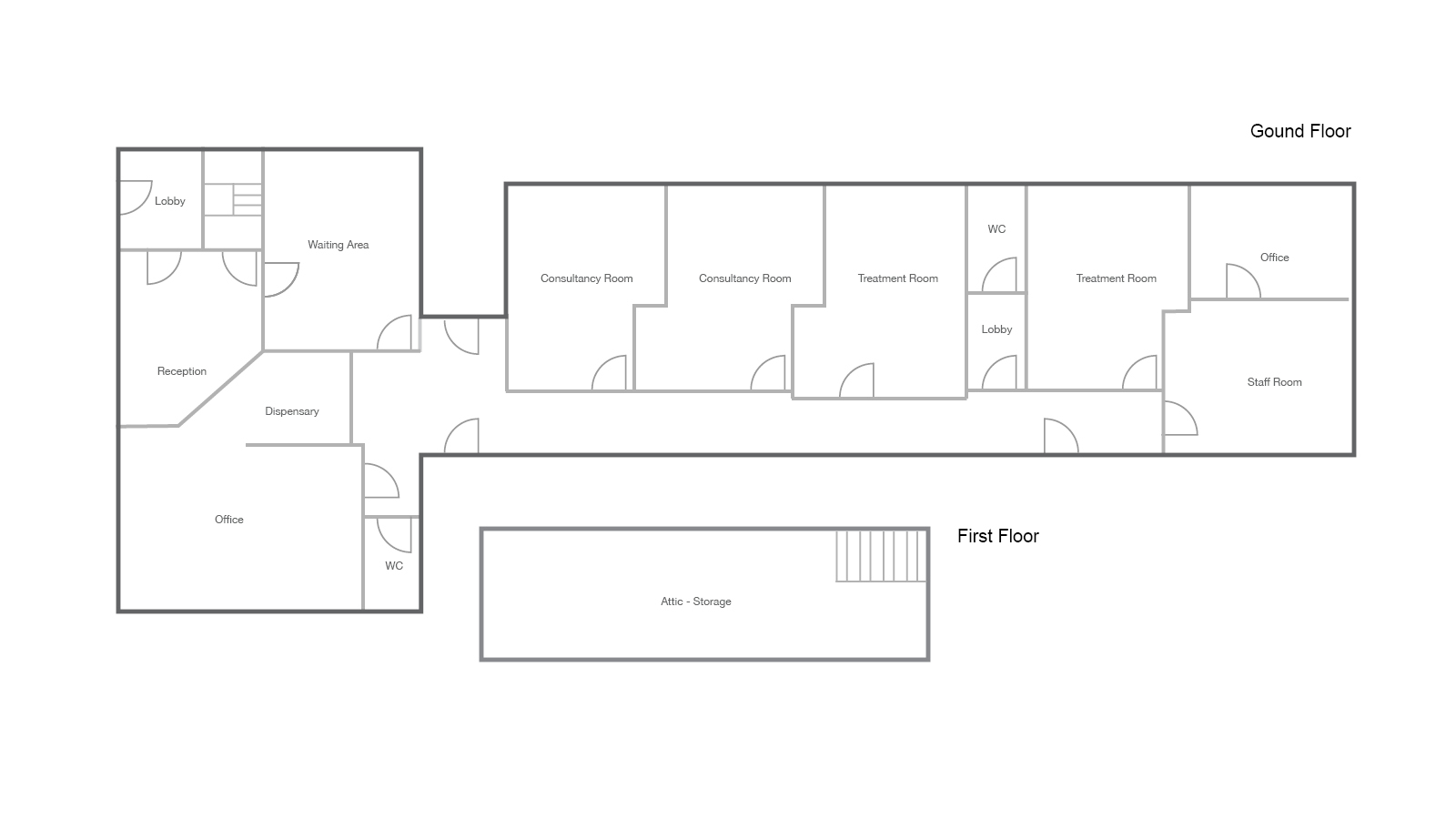
• Ground floor area: 154 sq m
• First floor area: 25 sq m
• Car parking spaces: 12
• Building type: Purpose built practice
Tillingham Medical Centre in Essex is a fantastic investment opportunity, new to the market. It is a purpose-built medical practice offering two floors of accommodation. A sizable tarmac car park is situated to the front of the property with further parking available to the side and rear of the property. The property provides a total of 12 car parking spaces.
Visitors enter the property into a lobby, leading to a larger reception area and then through to a waiting area. To the rear of the reception is a large office space and dispensary. The ground floor has a corridor running from the waiting area and reception through to the rear of the property. Two consultancy rooms, two treatment rooms and a staff room are accessible off the corridor. A further office is located at the rear of the property, accessible from the staff room. Facilities include two WCs. The ground floor has a total floor area of 154 sq. m.
The first floor is accessible via a stairwell, located off the reception area and behind the entrance lobby. The attic is 25 sq. m and is utilised for filing and storage purposes.
Click the floorplan to enlarge.
Please note GP Surveyors Anti-Money Laundering Policy for Clients and Purchasers.












