Friarwood Surgery, West Yorkshire is now sold, see all our available primary care properties here.
To receive GP property alerts please register here.
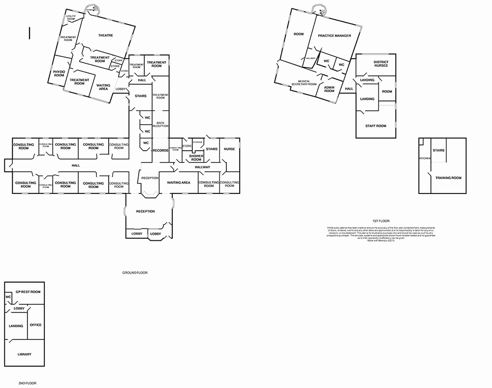
The substantial premises was built in the 1980s and is in a good state of repair. There are three-storeys, however, the majority of the patient rooms are on the ground level making it accessible to the disabled.
The surgery premises has been well maintained and has a good sized theatre for minor surgery. There is a car park to the side of the building which offers ample parking for patients and staff.
- Sale and Leaseback opportunity
- GP surgery sold in West Yorkshire
- FTE Doctors: 11
- Number of patients: 13,170
- Purpose built
- Floor area: 950 sq metres
Interested? Contact GP Surveyors
0114 281 5850





