Offers Over: £900,000
Bids Closed
Investment Summary
GP Practice
• Actual rent: £59,000 per annum
• Patient list size: 8,800
• FTE GPs: 4
• Freehold
• Lease: Full tenants repairing and insuring lease (FRI)
– Term: 15 years
– Lease commenced: 27th Feb 2023
– Lease expires: 26th Feb 2038
– Break Clauses: none
– Rent reviews: Every three years
– Next rent review: 27th Feb 2026
Key Property Features
• Ground floor area: 373.15 sqm
• First floor area: 68.31 sqm
• Car parking spaces: 21
• Building type: Purpose Built – 1993
Church Lane Medical Centre in Lincolnshire is a fantastic investment opportunity, new to the market. It is a purpose-built medical practice with a tarmac car park situated to the front and side of the property providing a total of 21 car parking spaces.
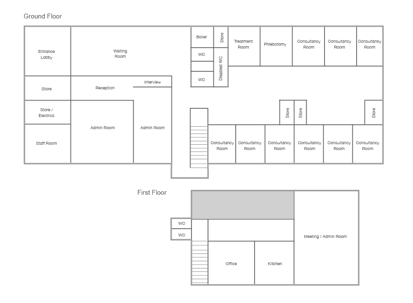
Visitors enter the property into a lobby, leading to a reception desk and a large waiting room. Two toilets are accessible from the waiting room as well as access to the boiler. Behind, the reception area are two store rooms, a staff room and two large admin rooms. You exit the waiting area to the right of reception where there is a corridor leading to stairs to the first floor and a large corridor to access the rest of the ground floor. To the right of the ground floor corridor are six consultancy rooms and two storerooms. To the left of the corridor there are three consultancy rooms, a phlebotomy room and a treatment room, as well as a fully accessible toilet, from which a further storeroom can be accessed. The ground floor is a total of 373.15 square meters.
The first floor contains an office, a staff kitchen, and a large meeting room, as well as two staff toilets. The first floor is 68.31 square meters.
Please note GP Surveyors Anti-Money Laundering Policy for Clients and Purchasers.















