SOLD
Offers Over: £3.8 million
Investment Summary
GP Practice
• Initial rent: £199,600 per annum
• Patient list size: 9,450
• FTE GPs: 7 GP’s (4 Partners, 3 salaried GPs)
• Freehold
• Lease: Tenants Internal Repairing (TIR)
– Term: 15 years
– Lease commences: On date of completion
– Rent reviews: Every three years, from completion date
Dentist
• Let to Whitecross Dental Care Ltd
• Dentists rent: £78,158.48 per annum
• Rent reviews: 3 yearly RPI reviews
• Lease term: 25 years
– Lease commenced: 2011
– Lease expires: 2nd May 2036
Key Property Features
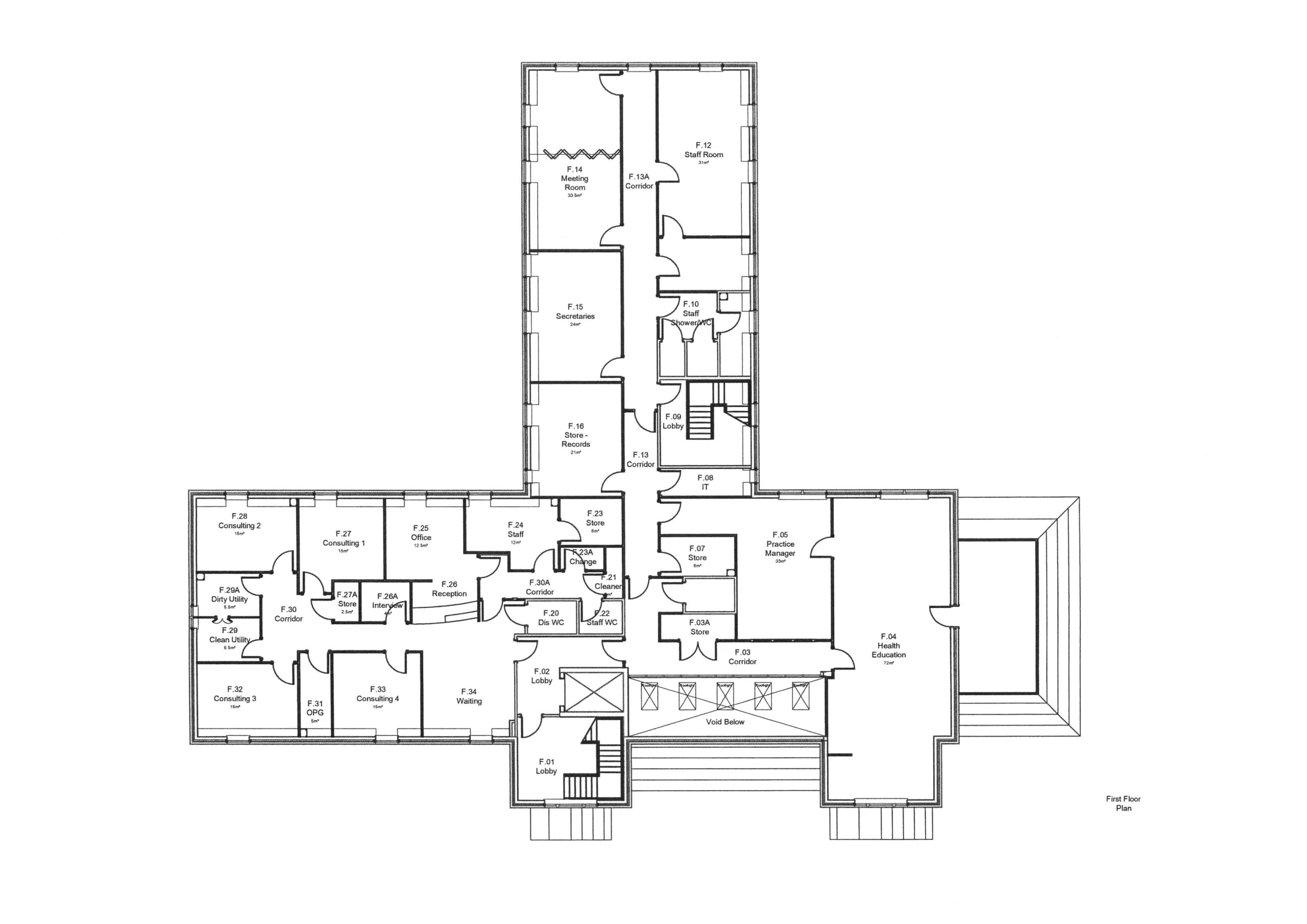
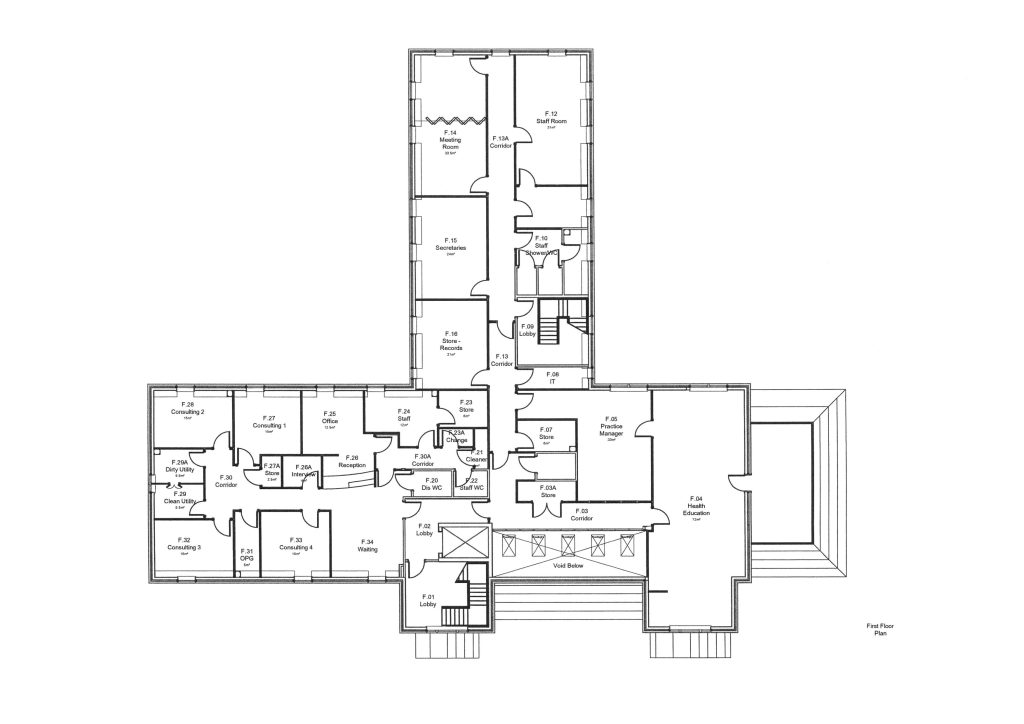
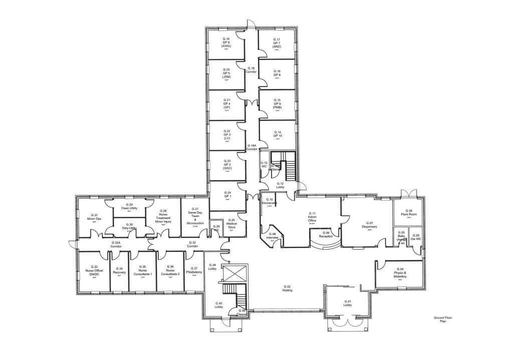
• Total floor area: 1,183.27 sq m
• Car parking spaces: 74
• Building type: Purpose built in 2011 by the current business partners to BREAM excellent standards
Constructed in 2011 George House is a purpose-build, modern and spacious building, located in the thriving South Norfolk village of Loddon. The property has a total floor area of 1,183.27 square metres and houses Chet Valley Medical Practice and Loddon Dental Practice.
The GP surgery has a current list size of around 8,950 patients, and covers a large geographical area. The catchment area is between the villages of Bramerton, just outside of Norwich, along the A146 Beccles Road, out to Norton Subcourse and Haddiscoe, and southerly to Ditchingham on the Suffolk border. The surgery is a dispensing practice and dispenses to approximately 4,000 patients.
The thriving dental practice on the first floor of the property is let to Whitecross Dental Care Ltd and sees both NHS and private patients.
Click the floorplan to enlarge.
Please note GP Surveyors Anti-Money Laundering Policy for Clients and Purchasers.
























